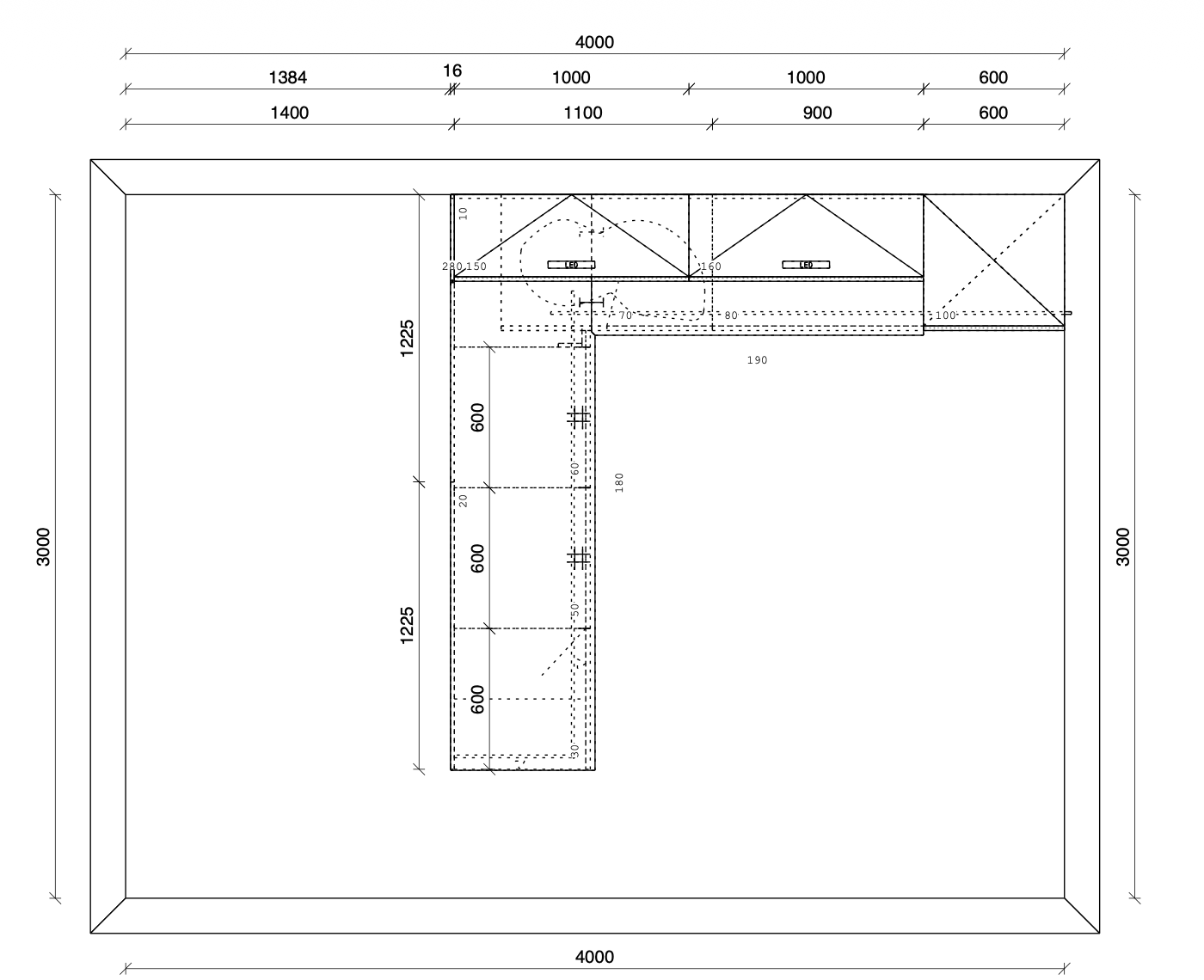
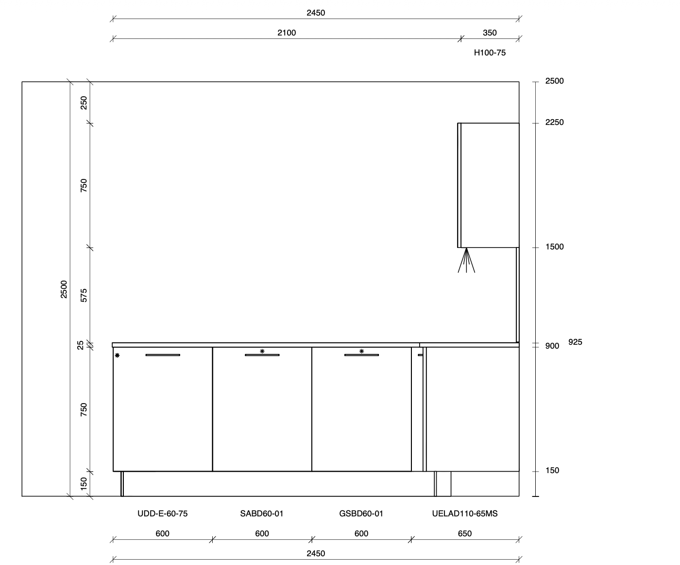
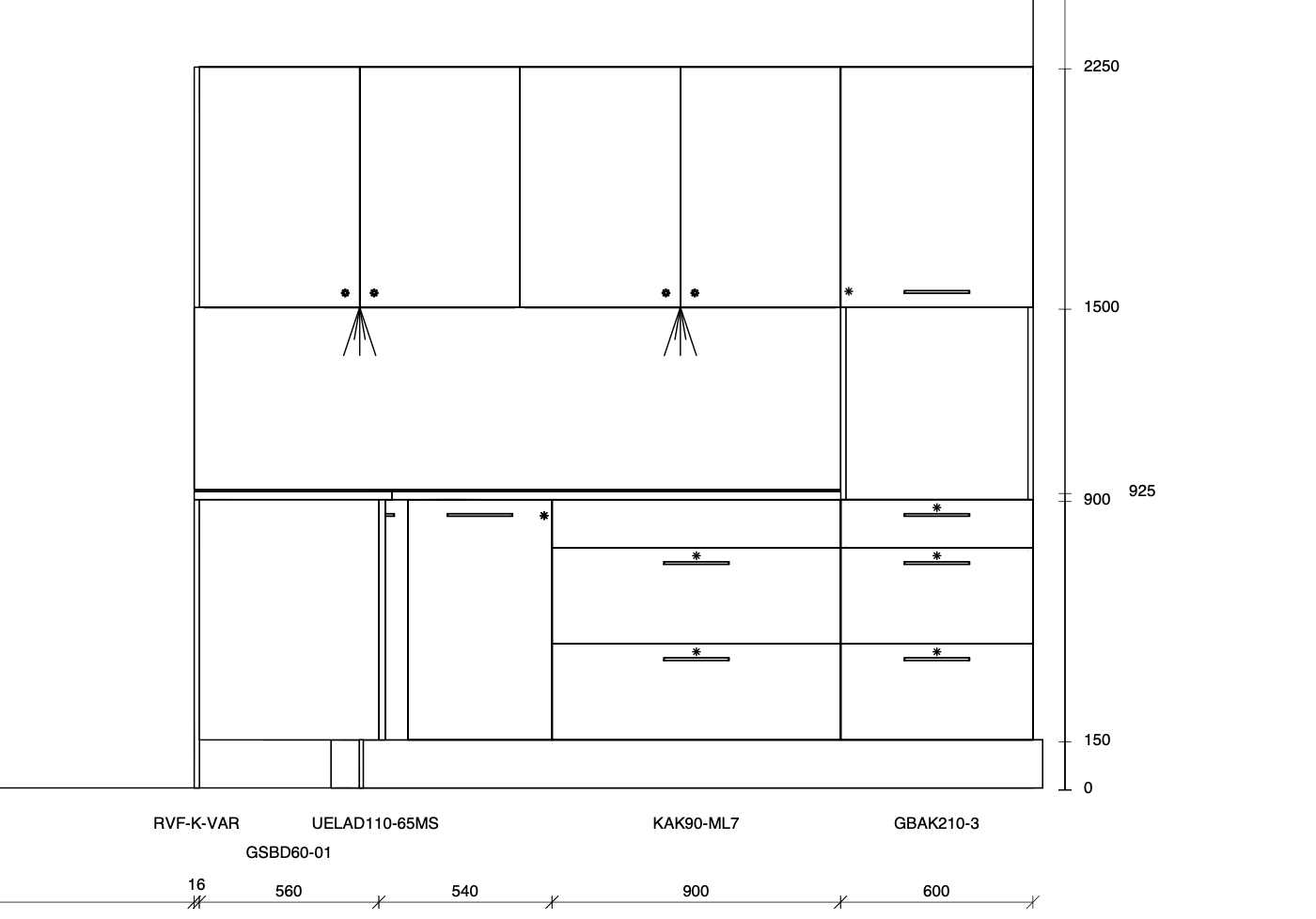
Nolte Karamel vystavka